TESSIN
Blog Tessin

Blog

InicioBlog

At TESSIN Construction Engineering, we believe that building is much more than just raising walls it’s about transforming ideas into solid, functional, and lasting realities. Through this space, we want to share our knowledge, project updates, construction trends, innovation, and the best practices in the industry.

Oct 01 2025
logistics industrial warehouses mexico airports

Advantages of Building Industrial Warehouses Near Strategic Airports in Mexico

In the world of logistics and distribution, the location of an industrial warehouse is a key factor for competitiveness. In Mexico, more and more companies are choosing to set up near strategic airpor...

Read more
Sep 29 2025
automatic sprinklers industrial warehouses tessin

The Most Effective Fire Protection Systems for Industrial Warehouses in Mexico

In an industrial warehouse, safety is not a luxury it is a necessity. Fire protection systems are the first line of defense to safeguard infrastructure, workers, and the operational continuity of the ...

Read more
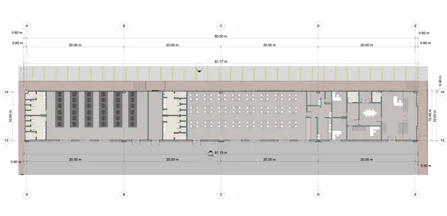
Sep 24 2025
warehouse layout optimization

How to Optimize the Layout of an Industrial Warehouse for Greater Productivity

In the industrial world, the internal distribution of a warehouse is key to achieving high levels of efficiency and competitiveness. A well-designed layout not only boosts productivity but also reduce...

Read more
Sep 22 2025
strategic location for industrial park

Key Factors for Selecting the Ideal Land for Your Industrial Warehouse in Mexico

Choosing the right land to build an industrial warehouse in Mexico is a strategic decision that directly affects your company’s operations, logistics, and profitability. At TESSIN Constructora, we kno...

Read more
Sep 19 2025
industrial parks mexico

Design of Access Points for Heavy Transport in Industrial Parks

Design of Access Points for Heavy Transport in Industrial Parks In Mexico, industrial parks have become strategic hubs for investment and economic growth. However, their efficient operation largely de...

Read more
Sep 17 2025
BIM industrial metodology mexico

BIM Applied to Industrial Projects: Real Advantages

In Mexico’s construction industry, industrial projects require precision, strategic planning, and efficiency at every stage. One tool that has transformed the way we work is BIM (Building Information ...

Read more
Sep 15 2025
industrial construction mexico

What to Consider When Locating Your Industrial Warehouse Near Roads and Logistics Ports in Mexico

In Mexico, the location of an industrial warehouse is a strategic factor that can determine the success of your project. Placing your warehouse near major highways, logistics corridors, and industrial...

Read more
Sep 11 2025
work schedule

The Importance of a Schedule in Construction Project Management

In Mexico’s construction industry, project management is a key factor for the success of any development. One of the most important tools to guarantee results is the construction schedule, a strategic...

Read more
Sep 08 2025
cleanroom construction

High Precision Cleanrooms in Mexico with Constructora TESSIN

In today’s industrial world, quality and environmental control are not optional they’re essential. That’s why cleanrooms have become a must for companies aiming to produce safe, reliable, and high tec...

Read more
Sep 05 2025
keumgang industrial park monterrey

What to Consider When Designing an Efficient Industrial Warehouse in Monterrey

Designing an efficient industrial warehouse in Monterrey is one of the most strategic decisions for companies seeking to optimize operations and reduce long term costs. With proper planning, businesse...

Read more